Fase: Voorlopig Ontwerp

Een thuis voor wie zorgt

Woonvereniging De Walvis bouwt 72 betaalbare huurwoningen voor zorgmedewerkers van het OLVG in de Jacob Geelbuurt, Amsterdam.

72
Woningen
€880
Vanaf / maand
2029
Oplevering
1.184
Dagen te gaan
-
Aspirant leden

Over De Walvis

Woonvereniging De Walvis is een wooncoöperatie opgericht op 7 maart 2023, met als doel betaalbare huurwoningen te realiseren voor zorgmedewerkers van het OLVG in Amsterdam.

Bekijk onderstaande korte presentatie over het project, de woningen en hoe je mee kunt doen.

Zorg voor zorgverleners

Onze primaire doelgroep bestaat uit zorgmedewerkers van het OLVG: van leerling verpleegkundigen en verpleegkundigen tot arts-assistenten. Betaalbare huisvesting dicht bij het werk.

Coöperatief wonen

De woonvereniging is de eigenaar van het complex. Alleen bewoners mogen lid zijn. Onderhuur en verkoop zijn niet toegestaan.

Duurzaam & sociaal

Een duurzaam gebouw met gedeelde voorzieningen, een levendige plint voor de buurt en aandacht voor geluidsisolatie voor nachtdiensten.

Het Project

Een wooncomplex in de Jacob Geelbuurt (Slotervaart, Amsterdam) met 72 woningen, gedeelde ruimtes en een buurtgerichte plint.

72 Woningen

Van compacte studio's (35 m²) tot gezinsappartementen (76 m²). 25% sociaal, 75% middenhuur.

Gemeenschappelijke ruimte

148 m² gedeelde ruimte: voor bijvoorbeeld samen koken, yoga, fitness, wellness met sauna, en ontmoetingen.

Buurtgerichte plint

180 m² voor zorg en welzijn: bijvoorbeeld huisartsenpraktijk, thuiszorg, kinderopvang. EHBO-cursussen en kookworkshops voor de buurt.

Geluidsisolatie

Extra aandacht voor geluidsisolatie zodat bewoners ook na een nachtdienst overdag rust kunnen vinden.

Binnentuin & galerijen

Brede galerijen met uitzicht op de binnentuin stimuleren spontane ontmoetingen en gemeenschapsleven.

Locatie ten opzichte van OLVG
Buurgebouw met ongeveer hetzelfde aangezicht
Locatie De Walvis op de kaart

Jacob Geelbuurt — Blok 5

Het complex wordt ontworpen door architectenbureau Time to Access (TtA) in samenwerking met de bewoners, passend bij de eerder gerealiseerde blokken van Geurts & Schulze.

Woningen

Van compacte sociale huurwoningen voor starters tot ruime gezinsappartementen. Samengesteld op basis van een enquête onder 200 OLVG-medewerkers.

72
Woningen totaal
18
Sociale huur
54
Middenhuur
€ 1.021
Gem. huurprijs

Type A — Studio

Sociaal

15 woningen • 1 kamer

Oppervlakte (go)35 m²
Huur/maand€ 880
Plattegrond Type A — Studio 35 m²

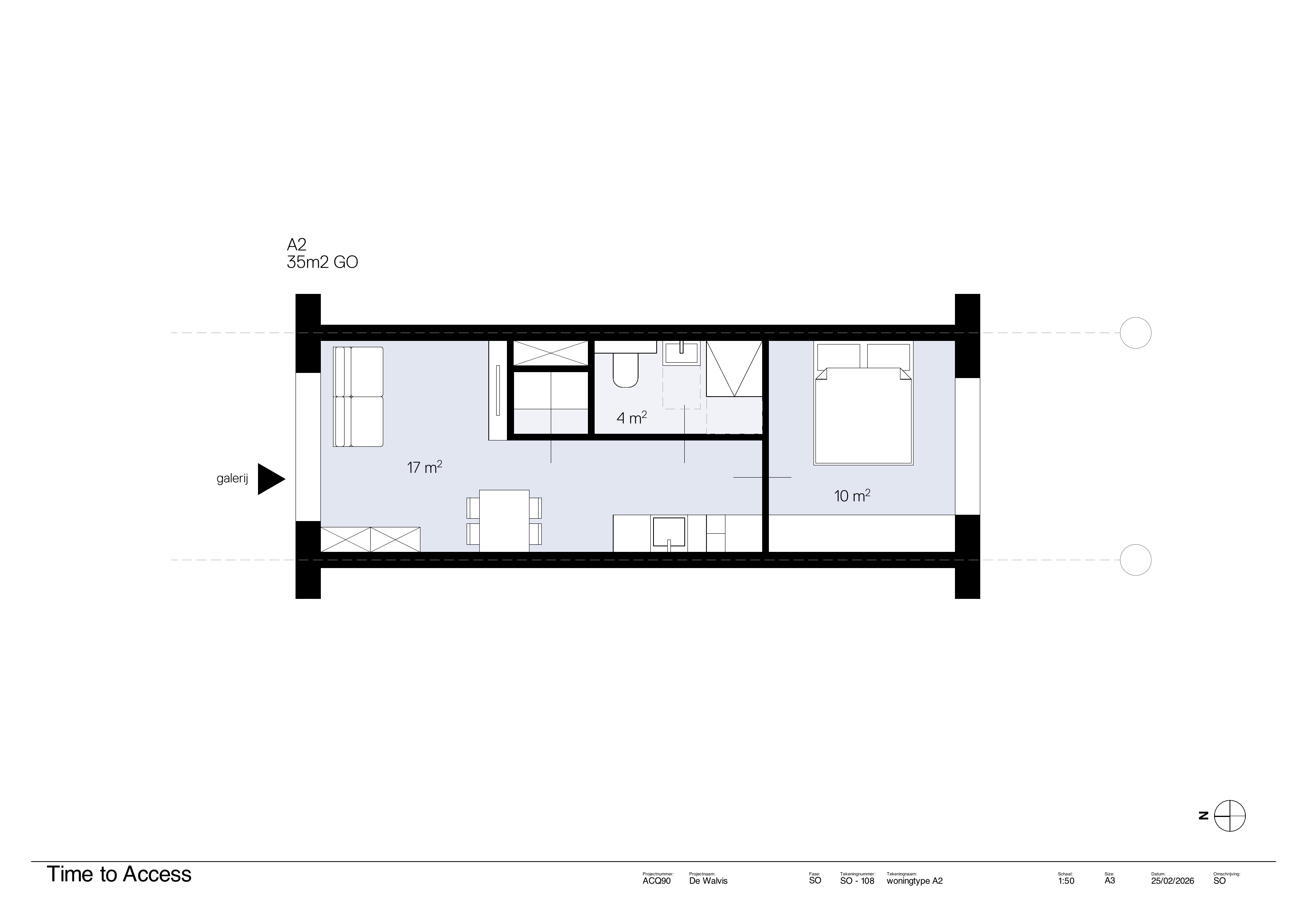
Type B — Compact

Middenhuur

10 woningen • 1 kamer

Oppervlakte (go)41 – 48 m²
Huur/maand€ 897 – 977
Plattegrond Type B — Compact 48 m²

Type C — Klein

Middenhuur

5 woningen • 1 kamer

Oppervlakte (go)40 – 52 m²
Huur/maand€ 908 – 1.009
Plattegrond Type C — Klein 52 m²

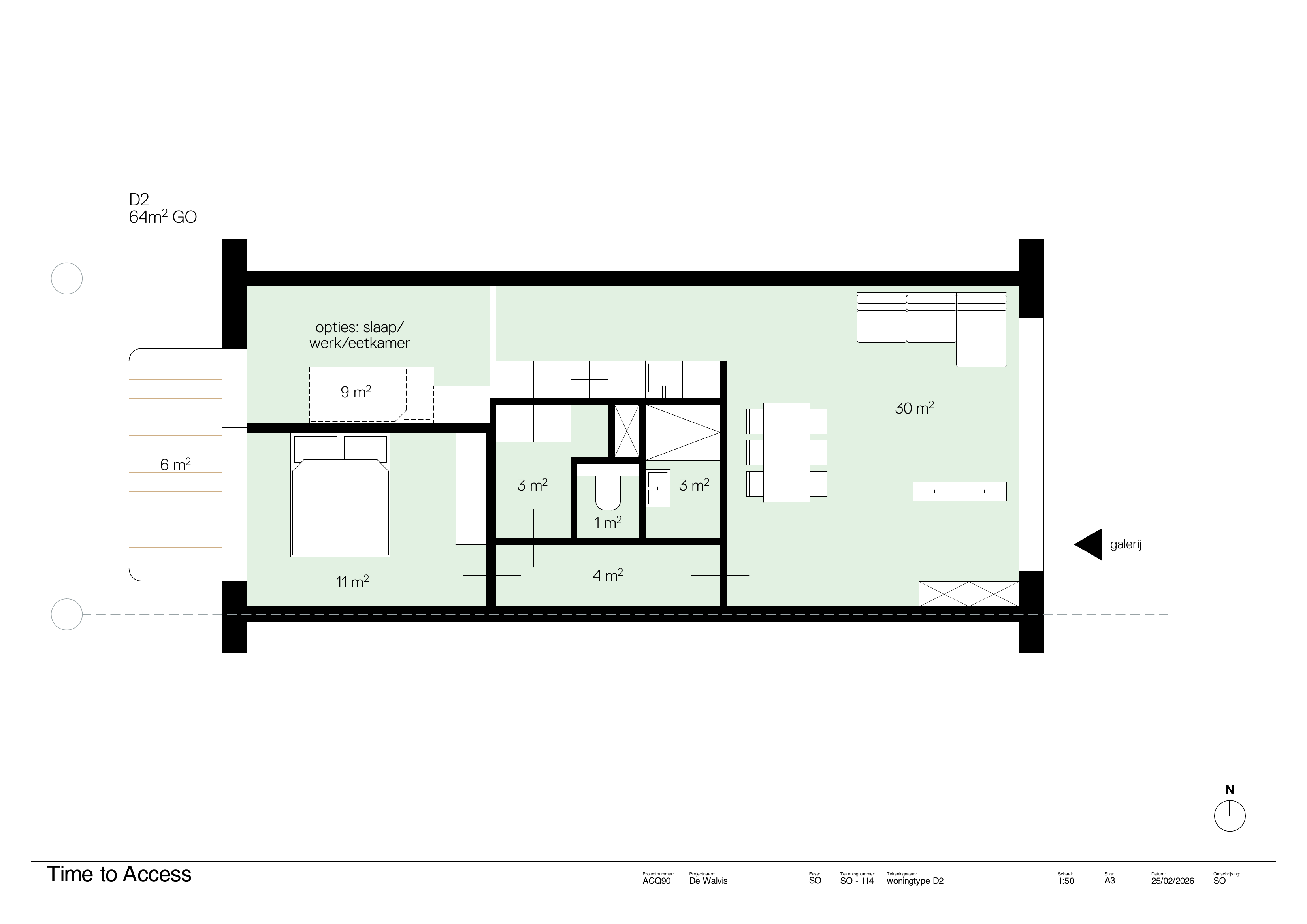
Type D — Standaard

Middenhuur

28 woningen • 2 kamers

Oppervlakte (go)54 – 64 m²
Huur/maand€ 1.020 – 1.094
Plattegrond Type D — Standaard 64 m²

Type E — Ruim

Sociaal Middenhuur

3 woningen • 3 kamers • w.v. 1 sociaal

Oppervlakte (go)72 m²
Sociaal€ 880
Middenhuur€ 1.168 – 1.189
Plattegrond Type E — Ruim 72 m²

Type F — Gezin

Sociaal Middenhuur

11 woningen • 2-3 kamers • w.v. 2 sociaal

Oppervlakte (go)64 – 76 m²
Sociaal€ 880
Middenhuur€ 1.105 – 1.288
Plattegrond Type F — Gezin 76 m²

Collectieve ruimte

2 ruimtes, 148 m² go

Bedrijfsruimte plint

180 m² go

Parkeerplaatsen

5 plaatsen

Prijzen 2024

Alle huurprijzen zijn inclusief servicekosten op basis van prijspeil 2024. Oppervlaktes zijn in go (gebruiksoppervlakte). De definitieve huren worden vastgesteld in de Definitief Ontwerp fase.

Steun De Walvis met een obligatielening

Help mee betaalbare huurwoningen te realiseren voor zorgmedewerkers. Al vanaf €1.000 kunt u bijdragen — met fiscaal voordeel en tot 2,76% rendement.

Laden...
Bekijk de obligaties

Let op! U belegt buiten AFM-toezicht. Geen vergunning- en prospectusplicht voor deze activiteit.

Ontwerp & Schetsen

Het ontwerp wordt gemaakt door architectenbureau Time to Access (TtA) in een co-design proces met de toekomstige bewoners. Hieronder de tekeningen uit het schetsontwerp.

Impressies

Tekeningen

Klik op een afbeelding om te vergroten. Tekeningen worden bijgewerkt naarmate het ontwerp vordert.

Planning

Van initiatief tot oplevering: de belangrijkste mijlpalen op weg naar ons wooncomplex.

Maart 2023

Oprichting

Woonvereniging De Walvis officieel opgericht.

Afgerond

Plan van Aanpak

Kaveltoewijzing ontvangen, plan van aanpak ingediend en goedgekeurd door gemeente Amsterdam.

Afgerond — Q1 2026

Schetsontwerp & Optieovereenkomst

Schetsontwerp afgerond, participatiesessies gehouden, adviseurs geselecteerd en optieovereenkomst getekend met de gemeente.

Nu bezig — 2026

Voorlopig Ontwerp (VO)

Kick-off ontwerpteam met TtA, co-design workshops, programma van eisen, volume-studie en eerste kostenraming.

2027

Definitief Ontwerp (DO)

Detaillering plattegronden, gevels, constructie en installaties. Definitieve keuzes materialen en financiering.

2027 – 2029

Vergunning & Bouw

Omgevingsvergunning aanvragen, aanneemovereenkomst afsluiten en start bouw.

Q2 2029

Oplevering

De sleutels! 72 huishoudens betrekken hun nieuwe woning in de Jacob Geelbuurt.

Het Bestuur

Het bestuur van De Walvis bestaat uit vijf vrijwilligers die zich inzetten voor de realisatie van het wooncomplex.

Jonas de Jong

Jonas de Jong

Voorzitter

Eva Wttewaall

Eva Wttewaall

Secretaris

Nol Verhees

Nol Verhees

Senior Adviseur Financiën

Ronald Steenmeijer

Ronald Steenmeijer

Senior Adviseur Bouw

Aydın Şekercan

Aydın Şekercan

Bestuurslid Bouw

Onze Partners

De Walvis werkt samen met ervaren partners in architectuur, financiering, zorg en woonadvies.

Andrea Verdecchia

Andrea Verdecchia

Architect — Time to Access

Mira Nekova

Mira Nekova

Architect — Time to Access

Jasper Klapwijk

Jasper Klapwijk

Financieel strateeg — Kantelingen

Meedoen?

Ben je zorgmedewerker bij het OLVG en op zoek naar betaalbare woonruimte in Amsterdam? Of wil je de wooncoöperatie helpen als vrijwilliger? Meld je dan vrijblijvend aan voor de mailinglijst!

Prioriteit 1: Zorgmedewerkers in dienst van het OLVG

Prioriteit 2: Zorgmedewerkers werkzaam in het OLVG

Prioriteit 3: Alle overige medewerkers van het OLVG

Prioriteit 4: Overige zorgmedewerkers in Amsterdam

We werken aan een systeem om geïnteresseerden een hogere plek op de wachtlijst te geven als ze eerder inschrijven, hogere prioriteit hebben en actief zijn in werkgroepen of bestuur.

Schrijf je in als aspirant lid